1. Introduction
After finished the H-beam assembling
process, H-beam automatic SAW welding is required. It has several structural
styles: LHA gantry type, LHT double cantilever type and LHC cantilever type. It
adopts A.C. variable frequency control to realize back and forth welding. It
has stable and reliable working and simple and convenient operation. Special
designed arc-guiding rack can satisfy the welding requirements of small H-beam
and star/cross beam.
2. Main Parameters
|
Model
|
LHT
|
|
Rail span mm
|
1600
|
|
Controller position
|
Middle
|
|
Web height mm
|
160—2500
|
|
Flange width mm
|
140—800
|
|
Job length mm
|
4000—15000
|
|
Welding speed mm/min
|
240—2400
|
|
Machine power kW
|
9
|
|
Power supply
|
AC380V, 50HZ, 3P or tailor made
|
|
Above are our standard models and parameters, and it can be
designed and manufactured on request.
|
*We reserve the right to alter
specifications without prior notice.
3. Main features
The standard models of our Double
Cantilever type H-beam automatic welding machine have the following features:
Robust all steel fabrication with stable structure and good
rigidity, and no deformation after long time using;
T-shaped structure which is reasonable and calculated; It suits for
larger H-beam welding due to both size have no limit;
Two welding heads can weld two beams at the same time;
A.C. variable frequency control;
Back and forth welding to improve the efficiency greatly;
With American Lincoln DC-1000,NA-3S SAW welding system or Chinese
famous brand;
With flux feeding and recovery machine;
It can weld star/cross beam by changing the arc-guiding device;
Heat treatment to main welding parts
after welding; sand blasting treatment to main welding parts before painting;
All motion parts have lubrication system;
Main electric elements are ABB/Siemens brands;
Lifting lug;
Standard color:
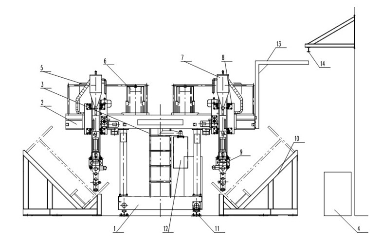
4. Structure drawing

5. Reference photo

|